Wednesday, September 30, 2009

Revit Web Update 2 posted - Build 20090917_1515

It's official the rumor is no longer. There is a typo on the RST page, it still says Update 1 but the Update 2 files are posted.

Download RAC now
Download RST now
Download RME now

Here are the highlights of items/issues addressed by this new build. If you'd like to read the pdf yourself CLICK HERE.
  • Annotation objects no longer disappear when panning a view that spans two monitors.
  • Improves stability when switching between Autodesk Revit Architecture 2010 software and Google Earth™ software.
  • Improves the modification behavior of hosted sweeps (i.e. gutters) attached to joined roofs.
  • Improves stability and performance when modifying walls.
  • Improvements to shared nested families.
  • Improves stability when modifying masses.
  • Improves design option rules adherence for walls in different design options and worksets.
  • Family and type information can now be read in Autodesk® 3ds Max® software from an FBX® file exported from a non-English version of Autodesk Revit Architecture 2010.
  • Improves stability when adding views to sheets.
  • Improves stability when making a design option primary.
  • Improves stability of printing views in wireframe mode.
  • Shadows will no longer be cropped when a view is printed or exported to a DWF™ file.
  • Subscription notifications are now available from InfoCenter.
  • Improves stability when reading IFC files.
  • Improves stability when opening a project with an inserted TIF image and when importing a TIF image.
  • ViewCube® navigation tool and the navigation bar will now display correctly after unlocking the computer.
  • Improves stability when removing panels from the ribbon.
  • Improves stability when cancelling a move, delete or copy command.
  • Improves performance of view renaming and the Workset dialog.
  • Mass floor schedules will now update when a level is renamed.
  • A form element that has a divided surface applied to it will now be correctly generated after a copy, paste, or move.
  • Improves stability when exporting to DWG.
  • Dimension and spot elevation values will now display correctly in a dependent view
The list of API related adjustments is actually longer than the list above. I recommend you take a look at the pdf for those if you are interested in the API issue.

Dept. of Echo - An MEP Coordination Memo

A retweet, using Twitter terminology, Jason is the creator of Revit Garage, a blog for Revit MEP. His post tonight is worthy of echoing in my opinion if it helps get the word out, so to speak. He hasn't posted a lot but isn't just about quantity eh? A couple of cogent points he makes that I'll snip and include here but please read his full post.

snip...
Deleting architectural elements: To the largest extent possible, please modify host elements (walls, floors, roofs, ceilings, etc.) rather than deleting them and replacing them with new elements. Some MEP objects such as light fixtures, diffusers, wall devices, etc. are hosted to these elements. If these elements are deleted, MEP objects can become orphaned and require a considerable amount of time to re-host. If an element must be deleted, please inform the MEP project team member so that appropriate actions can be taken.


snip...
Worksets: It is common practice for Revit MEP users to set their views to “By Host View”. This allows us to easily create and modify views to fit our requirements. Therefore, when creating a workset, please keep in mind that if the “Visible by default in all views” option is not checked, any object placed on that workset will not be visible by default in the views created in the MEP model when the architectural file is linked. Therefore, for such elements to appear in views within the MEP model, the MEP project team member has to take extra steps to create views that are linked to views present in the architectural model.

Tuesday, September 29, 2009

Off Topic - Plug a Local Espresso Shop

I don't like coffee. I love the smell of coffee. But the taste of coffee has never worked for me. I do drink coffee but not what a purist might think is coffee. I like a Caffe Mocha. You know the coffee that has enough chocolate to disguise the coffee"ness"? I also like coffee that has been altered by French Vanilla flavoring. True coffee afficionados are cringing...

I get coffee at the usual places, Starbucks, Peet's, Seattle's Best and a local haunt near where I live called The Lost Bean. The drinks that I get at these various places are good, or so I thought. The best I have had until tonight is between The Lost Bean and the Seattle's Best near my daughter's soccer practice site in Irvine.

Tonight I found out I haven't been having a caffe mocha at all, merely a poor stand-in, poser or imposter. In fact, I've never really had a caffe mocha apparently.

It was raining pretty hard tonight when I left the office. Convenient that, just outside the client's office in Seattle is a nice place called Espresso Vivace Roasteria. The barrista was great (I should have taken a photo of the presentation of the foam/cream on top) and from the first sip to the last it was the smoothest caffe mocha I've ever had. I got the "tall" instead of the "short" and then thought, "maybe this is too much"...perish the thought! I finished it wishing I could tolerate more caffeine.

If a mocha is supposed to be like this I'm wrecked...what's the point of enduring the others. Ah well...at least I know the difference now. I may have to see about other coffee, maybe I've just not had the real thing yet either?

Monday, September 28, 2009

Off Topic - Seattle

No posts over the weekend. I came down with a bug toward the end of last week and I did practically nothing over the weekend so I'd have a shot at this week in Seattle. Feeling better but my voice nearly vanished by the end the day. I had a couple ideas for posts and videos but no voice, no video...will have to wait for a couple days. I can see the Space Needle from the office, cool! Now I just have to make time to see it in person. I found this image on Dave's Travel Corner



Overanout!

Friday, September 25, 2009

Are You a Good Sketch or a Bad Sketch? Part Deux

I wrote an article about this before but just put an image in the post. I thought I'd revisit it with a video this time. You can listen and watch here too.



Thursday, September 24, 2009

Dept. Of Rumor Mongering

I've heard rumblings of another web update for the Triple threat, RAC, RST & RME coming "soon". So be sure to check in at Autodesk now and then to see if it has been posted yet. I'm going to check a lot because I want to be first on my block to get it!! Those Jones' neighbors got it first last time!

Property and Setback Boundaries - The Property Line Tool

I wrote this article in October 2005. I was surprised it was so long ago. The file I used was old enough that it warned me, while upgrading, about the big changes to the room element, that came with Revit 9.0. This time I made a short video and you can listen and watch here if you prefer.



Wednesday, September 23, 2009

Musing, Rambling and um...Wisdom?

Going to run off topic with this post.

I came up with a new description for the Quick Access Toolbar (QAT) today in class. I don't think I had too much coffee at this point but I said Quick "a$$" Toolbar instead, oops. But come to think of it, it might actually work for some people? Your mileage may vary.

In another class I blurted this one out: Famula - What happens when you try to say family and formula in the same sentence too close together after too much coffee. I detect a theme here, should consider decaf?

-------
AutoCAD has Layers and you can draw By Layer
Microstation has Levels and you can draw By Level

Let's put'em together? Either Layvels or Levyers? Who is with me? Do we need a referendum? Can I get an amen?

-------
In yet another side of Mr. OpEd I worked in the convention service biddness for about 18 months. The Freeman Companies, based in Dallas with offices all over, was my employer. In the mid 80's I decided to find a job that didn't require me to travel (my roadie life that is) so I could pretend that my girlfriend mattered (she's my wife now, so she did and does, I can't say how long we've been married because she doesn't like people to do the math, but here's a clue blackjack).

I called them after seeing an ad in the yellow pages, while looking for something else ironically. I was in a quandary at the time because...what exactly does a roadie do for a new job anyway? Apply at Merrill Lynch and do financial analysis? Uh..not me anyway.

I asked the person who answered the phone...are you hiring? She replied cheerfully, "We are always on the lookout for good people." To her credit she listened to me briefly describe my history; where I was born, when I learned to ride a bike, my first stitches...we laughed we cried.

After all that she actually asked me to wait while she transferred me to Bobby. Bobby actually listened to the whole story again...we didn't cry but we laughed, well...because we are men. I only cried earlier because she got so emotional, no really! He startled me when he asked me if I could, "Come on in today" in the coolest southern drawl ever (I was living in Atlanta after all). Long story...longer...Bobby offered me the job on the spot and how soon could I start, tomorrow? We settled on the following Monday. Oh and the cheerful woman who listened to me...Bobby's wife. Great folks!

They turned me loose on the show floor of Comdex, just about the biggest computer convention of its day. No wonder he was ready to hire me, all six halls of the Georgia World Congress Center ( now nine I think?) and some overflow into the hotels nearby. As long as I was breathing they could have found something for me to do for a couple weeks! Later on I let it slip that I had a Class A commerical drivers license (CDL - tractor-trailer) and next thing I knew I was shuttling trailers to and from. The convention business is a classic case of "you know how to do what?" and next thing you know you are...uncannily similar to being a roadie.

It was here (at Comdex) that I learned the piece of wisdom that I promised in the title. Jim, my mentor, shared a nugget, a pearl, with me in the first few hours we spent together. He said, "Steve...there's three things you don't know!" I replied incredulously, "Really?? Only three??" Modest I am...

He said, "Yep...You don't know what that thing is, You don't know who that guy is and you sure don't know where over there is. I asked for a bit more detail and he put me off..."Don't you worry about that just yet!"

He turned me loose and my task was to check up on the various hired helped that was delivering chairs, tables, ash trays etc. to booths. Within a few minutes I saw a group of guys milling around, guys I'd just seen getting their marching orders from someone I hadn't met yet. I had a three wheel Honda scooter (the foreman get these) because the buildings are about a quarter mile long.

I arrive on the scene on my bad motor scooter and ask, "What are ya'll doin?" They reply, practically in unison, "That thing!" Hmmm where did I hear that phrase before? So I ask, innocently, "Who are you doing it for?". In unison again, "That guy!" Now my ears are ringing... So I ask, again innocently, "Where is he?" In unison..."Over There", waving their hands in any general direction away from where they stood.

So in the space of an hour or two on the job I learned that I didn't know three things and knew how to apply that knowledge. Okay, honestly, I didn't know how to apply it...but I now knew why Jim let me know, a true case of Been there done that, have the tee-shirt, for him anyway.

Maybe someday I'll share my "Steve learns that installing red entrance carpet downhill is easier, after installing it uphill" story?? And now you wish you didn't read OpEd today...as you were!

Tuesday, September 22, 2009

Dept. of Subtle - RME 2010 Tutorial - Temporary Dimensions

I've posted about Temporary Dimensions (TD's) before, try the Search This Blog feature on the right side bar to see for yourself.


I think this one fits the Dept. of Subtle nicely. A member at AUGI asked about page 328 in the RME tutorials. We are instructed to select a fixture and then alter the TD that appears. Trouble is it doesn't always appear. The trick is to zoom out so there is more model in view and try again. Once the TD's appear you can carry on as you were. Since it is easier to see it happen I captured a quick VIDEO. You can listen and watch here.


Monday, September 21, 2009

Update the Update to Autodesk University 2009

As a follow up to the post that I shared my class schedule with, there is now a list of Virtual Classes to review but no sign of how to schedule for attending yet.



I imagine they are working feverishly on that bit.

Now Bruce Wants to Go to Autodesk University 2009

It was only a matter of time... Bruce posted his reason to go and his has Revit in it! I'm not trying to distract attention from Laura but he has another perspective. You can WATCH it at Youtube or listen and watch here.

Echo Dept. of Echo: Link Central Files

The Revit Clinic blog has been posting an ongoing series of 10 tips for XXX. The latest installment is for Linking Files. Item number 6 bears repeating...echoing.

6. Central file or local file link?

When linking a Revit project file into a host project, ensure the link was last saved as a central file. Links that are considered local files will check for a related central file as they are loaded. This can cause a performance hit which can be avoided by ensuring all links are central files.

It is interesting that this is stated clearly for once. There are two threads (at least) at AUGI that suggest considering the reverse, that linking local files instead is better. It is always helpful when the Factory comes out and says something specific like this, as long as it is correct. ~smiling~

Sunday, September 20, 2009

Activate Dimensions Redux

I've posted about the Activate Dimensions feature a couple times in the past HERE and THERE. I've just recorded a short VIDEO that shows a practical example of using them to alter the sketch of a stair. Here's an image capture of the temporary dimensions that appear after using the tool.


If you want to listen and watch now...here it is:



Saturday, September 19, 2009

Off Topic - Proud Dad Moment - Goooooal!!

My daughter really enjoys soccer. It has been a consistent priority for her. She plays for the FC Blades Girls U9 Bronze club team. She's not as much of a fan as me but she does like to play. This past weekend was the first fall season game. They won 3-1 and she put a rebound in goal! Atta Girl Emma! Naturally no photo of the goal, just afterward. Game 2 is today, go Emma and go Blades!


Echo Dept. of Echo: Files Larger than 2 Mile Diameter

Prior to Revit 2010 if we encountered a civil file (or others) that had geometry that resulted in extents greater than a 2 mile diameter Revit would just complain. With 2010 it gets more obstinate. It refuses to let you import the file. They are trying to help us help them avoid accuracy and display issues that come with Files-of-Unusual-Size (aka FOUS). A bit too much tough love though? (tongue twister!)

The Revit Clinic posted tip 7 of 10 in a recent post dedicated to Linking Files

7.  2 mile warning on import
If you receive the "Revit cannot import because it will create a Revit model that is larger than 2 miles across" warning and the CAD file contents appear to be within 2 miles in size, there are 3 items to verify:

  1. Turn on all layers in the AutoCAD file and zoom extents to ensure there are no stray objects.
  2. Not only check a top view in AutoCAD but also open an elevation and 3D view to ensure the entire model placement is within a 2 mile area.
  3. If the CAD file contains AEC objects, ensure to set PROXYGRAPHICS to 1 in the CAD file.  This can reduce the occurrence of this warning when these objects are present to ensured they are properly displayed.

Item 3 is a good one to remember since civil files often have these. Keep in mind that any AutoCAD based vertical involved needs to save Proxygraphics, by setting the variable equal to 1 (turns it ON), if you hope to see the geometry in Revit too. In this the context of this warning it is particularly important because even if they aren't visible to us, Revit stills sees that they are there, it just can't display them and they DO affect the file's size/extents.

A fourth possibility exists as well, Blocks. While remote perhaps, blocks can contain additional data that is hidden or forgotten which could result in the file technically being too large to import. Good luck!!

Friday, September 18, 2009

Project Twitch: Try Revit without Installing It? Interested?

Autodesk Labs is working on concept that will permit us to try software without downloading it and installing the full package or request a DVD. Scott posted this today.

Autodesk Labs team members Eddy Kuo and Frederic Loranger have been hard at work creating an environment where you can run trial versions of AutoCAD, Inventor, and Revit on remote servers. At this point in the technology preview, we are looking for feedback on using our applications in this fashion. You can take one of our applications for a spin at:

Project Twitch: Autodesk Labs Application Trials Technology Preview

To try our design applications, you will need to download and install a small client application that is much smaller than our design applications. It is used to access our server. So although Project Twitch is not totally install-free, it does allow you to try AutoCAD 2010, Inventor 2010, and Revit Architecture 2010 without downloading these applications or requesting a DVD. You will need an Autodesk Labs Community login (a.k.a. Autodesk Single Sign-on also used for subscription and other communities) to participate in the technology preview.

The requisite cover thy bottom text:
The technology preview is not intended for production use. As such, you cannot upload your own files or save your work. Instead you fire up an application remotely, load a sample file, and view/modify it. Based on the technology involved, you need to be within 1,000 miles of the San Francisco Bay Area to participate in the technology preview - any farther than that and there would be too much internet latency for a pleasurable experience. (Hey I relocated just in time, but actually my old house was 725 miles from the data center so it worked there too.) You can let us know how it worked for you at labs.trials@autodesk.com.

Duplicate Mark Values

This warning means what it says, you have two elements that have the same mark value. Why are they sharing the same value? It's pretty simple really when a project is using worksets. We each work in our own local files and each file is a copy of the central file.

Let's take a classic example, Doors. I add doors, you add doors. In my file and your file the next door number is, let's pick 108. I added a door and Revit thinks it is door 109. You add a door and Revit thinks it is door 109. No problem until you Synchronize with Central (SWC) (there see I remembered the new language). When the central file receives my data first, no worries. When you SWC that's when the error occurs, so it IS your fault! Sort of...guilt by association.

The next number is 109 and we are both correct except that we are briefly isolated by our Local Files. No isolation after the SWC and the error(s) is/are trapped. The central file does not oversee the delivery of unique Mark values, maybe it should? It only reacts to work done in our local files.

Some of these errors, like our doors, get resolved as the design progresses. A door number gets a better value as soon as room numbering is sorted out because we endeavor to define the door number then. Others don't get resolved naturally because we don't usually itemize them, but Revit does.

An example of this is Air Terminals in Revit MEP. They get tagged but not usually by a unique mark value like a door. We could but it doesn't happen in practice very often. Instead they are usually tagged by Type, like windows are often tagged by architects. Speaking of windows, they suffer from this issue too. The same scenario exists for these yet there is no natural process to resolve the mark values other than to spend time fixing them.

In this instance, and other similar items, Revit creates extra work for us because it is necessary to minimize warnings in order to ensure the best performance while working on our projects. It might be worthwhile to have a way to define which elements Revit should incrementally assign a Mark Value. For example, hypothetically, we could tell Revit to ignore Air Terminals via Mechanical Settings. This would eliminate a lot of warnings when several people are building their model simultaneously.

In the meantime we need a hero API programmer to provide a free application (or reasonably inexpensive) to renumber all items of a user selected category so they all have unique Mark values again. Since we don't care what their real Mark value is the application can be merciless and simply renumber them all starting with 1.

[Added because of a comment, thanks!]
I dismissed the Element Positioning tool in the past because it didn't seem to work properly for me, I've revised my opinion today, user clumsiness. This tool is part of the Extensions for Revit, available via Autodesk Subscription only. There are versions for each Revit flavor. Revit Structure (RST) has the fullest collection of tools because they were originally written for RST and later the ones that would be useful for RAC and RME were made available. I decided to make another VIDEO to explain how it works. You can listen and watch here too.



Thursday, September 17, 2009

Laura Wants to go to Autodesk University 2009

Laura created this video because she wants to go to Autodesk University. I liked the video, it is well done, I appreciate the effort and initiative. I think you should watch it and help her go too! I've embedded it here so you can listen and watch NOW!



Why did she do it?? Autodesk is running the AU 2009 YouTube Contest: Enter to Win!

Here’s your chance to win one of three (3) AU 2009 Las Vegas 3-Day, All-Inclusive Passes, each worth US$2,395 (regular rate). The All-Inclusive Pass includes conference, classes and hands-on labs, hotel, meals, and social events.

How to Enter
To enter, all you have to do is create and upload a “video response” to the YouTube video “Reasons to Attend Autodesk University”. In your video, tell us why you want to attend AU 2009 in Las Vegas.

How Winners Will Be Selected
On October 12, 2009, the five (5) most-viewed video responses will be posted to AU's Facebook Fan Page. AU Facebook fans will then vote for their favorite videos by using the "Like" feature.
On October 16, 2009, those individuals with the three (3) highest number of "Likes" will be declared the winners.

Each winning contestant will receive an AU 2009 3-Day, All-Inclusive Pass.

The more creative and entertaining your entry, the more likely you are to win!

Learn More
Visit the official Autodesk University 2009 YouTube Contest page for more information. Then get out your cameras, tap into your creativity. and go have some fun.

BTW, to vote for your favorite video submissions, be sure to become a Fan of AU on Facebook. Follow AU on Twitter for real time updates and contest announcements.

Which Group? Choosing a Parameter's Parameter

This topic should not be confused with the Group feature which allows you to arrange/combine multiple elements into a repeateable/reusable/easily updated Group.

When you make Revit content you inevitably have to make a parameter of your own. Naming parameters is a can of worms and I'm leaving that lid on for this post. I'm going to open the lid of a smaller can but one that doesn't get much attention, because of its size I suppose. I'm referring to the highlighted feature in the image. The Group parameter under drop down list box.

Once you've made a choice you see the results in the Properties Dialog like this one, created My Parameter using Group: Title Text.


The blue bars are a Group header/parent and the parameters listed beneath it are its children. Clicking on the bar will collapse or expand the list of parameters assigned to the group. Groups only show up if there are corresponding parameters

So how do you choose or decide? It is an organization tool, not a functional feature that causes something to happen (other than sorting the parameters themselves). If it helps, you are defining what the parameter's role is or said another way, what is its purpose?

If you are applying parameters to change the size or dimensions of a family then the logical group (to me) or role is dimensions. A constraint is a control role...this parameter is limiting or managing behavior elsewhere. If you are creating a Yes/No parameter to control the visibility of a solid that you could choose the Graphics group since it alters the graphic representation of the family. The choice is subjective...which means you (your firm, your clients) need to reach some agreement about how to apply them.

A lesser aspect, but the Group value also defines where the parameter appears in the list of all the parameters because of how Revit sorts the list. I know some users who put things in Constraints just because it is FIRST and they put things that they don't want users to find (unless they actually scroll down the list) in Other because it is LAST. Just to make it a bit more confusing...the sorting of the Groups is not purely alphabetical, they are displayed in what I assume is a hardwired order.

This feature is one of the few choices you are faced with while creating a parameter that you can make and then change afterward. Happy choosing!

Wednesday, September 16, 2009

Design Options - Online Class with Paul Aubin

Paul Aubin asked me to pass along the word that his upcoming Design Options webinar tomorrow has a couple openings left. If you have an hour available tomorrow (September 17th, 12:00-12:50pm) you might be interested? You can visit his site for more details. (btw, the class is not free)

Area - What's the Difference?

Two methods exist in Revit to document area; Rooms and Areas. Okay technically this is true for Revit Architecture (RAC). Revit MEP has Spaces and Zones too but this post is focused on RAC.

A room and its area is defined globally, affecting all room areas, by one of four methods.


All room areas are determined by the existence of walls or room separation lines. The following image has  some rooms, note the "X" in each room. These are a room's reference sub-category, usually turned off in Visibility/Graphic Overrides, and the center of the "X" is the origin of the room.

Areas are a broader, a bit more involved, but more flexible way to define area inside or outside a building. Areas are documented using special plan views according to a specific area scheme.


Consider a shopping mall, think of Area as an individual store or tenant and rooms as the storeroom, bathroom, fitting rooms etc. as defined by the partitions within a tenant's leased space. If that relationship makes sense you have a sense of the application of rooms and areas. Another way to think of them is of a college building with a dozen classrooms for mathematics. Each classroom is a unique area while an Area can be defined to include all of the classrooms as a single area designated as Mathematics. I apologize for the overlapping terminology, we use "area" interchangeably for a number of things which makes it a bit like, "Who's on First?".

The above image shows the mathematics area but I also added another area for parking. This shows that WE can define what the boundaries are for each area as required.

Rooms are fast and easy but universal, calculated by the same boundary location. Areas are defined by boundaries that you choose to define yourself. Areas combined with Area Schemes allow us to provide summaries using different assumptions, like gross area versus rentable (stock settings in Revit). Area boundaries can follow walls or be based on boundary lines that we sketch ourselves regardless of building elements. The Area tools are the most similar to sketching polylines in AutoCAD that many of us are familiar with except that we can schedule the resulting data very easily and have it update dynamically. More work to be sure but much more flexible too.

Something to keep in mind is Areas and Rooms are not aware of each other. An Area cannot tell us how many Rooms exist within its boundaries. This has always felt like an oversight to me. My feeling was amplified when the Revit MEP product introduced Spaces and Zones and Zones are aware of Spaces. They have the sort of relationship I've always felt Rooms and Areas should have. This means you can define tenants with Areas and create Rooms inside their space but an Area schedule can't summarize the rooms it has inside. Two schedules will have to tell the story instead of one.

Tuesday, September 15, 2009

Coordinates - Acquire versus Specify

Two tools, Acquire Coordinates and Specify Coordinates at a Point. Both provide the same end result except when the source file for the coordinates has very large values. In this VIDEO you'll see coordinates that are in the millions of feet from the origin of the file. Acquire coordinates fails to provide the correct data where Specify has no problem with it. Here's the resulting values using Acquire Coordinates.


Here's the correct values.

You can listen and watch here now.


Just remember that you can't trust Acquire Coordinates with large coordinate values, make sure they match!

Monday, September 14, 2009

Area Measurement - An Arbitrary Tool

A common request is for a tool to quickly measure the area of something. It's created a number of angry or puzzled posts at AUGI over the years. Most describe the tool as, "Give us the same tool as AutoCAD's Measure tool".

In my view most of the reasons for such a tool are disguised suggestions for improvements to schedules. A few examples? Glazing reports for the exterior envelope of a building. The Area tools would cover this but they don't work in elevation because of their bias for plan views. Some others are the area of Louver, grills, diffusers and floor materials or patterns. It comes down to curiosity I suppose, "How much area does this thing cover?".

I've no objection to having a quick area tool but we ought to be defining the kind of data that we'd like to have quick access to anyway, that Revit SHOULD do or provide. If we need the area of louvers once, chances are good we'll need to check those numbers again. Computers are good at that, why should we have to sketch around louvers at all or worse create a spreadsheet for that information? A louver schedule ought to provide a quicker summary of all of them. A quick look at the properties of a louver ought to tell us that.

A measure area tool would still be good to do something arbitrary once in awhile.

Incidentally the Region tool will do exactly that with maybe an extra click or two. They added that to the tool as a result of this issue. It is something you can keep for awhile too, or throw away. Seems that most people object to extra step of deleting the resulting Filled Region. We have to cancel out of the command in AutoCAD don't we? Semantics really. It'll get you what you want for now. If you set up an extra view to create them in you can revisit them anytime you want.

We can remind them that we'd still like a specific tool as well.

Sunday, September 13, 2009

Curtain Wall Louvers or How to Avoid Arrays

I think that Phil Read is the first person I saw reveal this technique many years ago now, probably at Autodesk University but it may have been at AUGI in a thread, I just don't remember now.


The essence of this tip is using a curtain wall type to define a series of mullions that pose as louvers. The special curtain wall type is then swapped out for other panels in a larger host curtain wall. The mullions are defined as new types as well, one for a louver and one for the perimeter framing if necessary. It is important to use the Empty Panel for the Default Panel parameter so that there are no panels in the louver curtain wall, just mullions. I posted a VIDEO and you can listen and watch here now if you prefer.



Saturday, September 12, 2009

Project Submittals - Do You Require 3D Submittals Now?

With all the hoopla about BIM and IPD one thing I have not heard much about (actually I can't recall anyone discussing this within earshot) is the submittal process. I get the feeling that for most it is still business as usual; catalog cuts, 2D drawings and "can we get an approved or reviewed stamp ASAP?".

Seems to me that it is a natural expectation, or logical next step, that we start requiring 3D submissions from our project's array of contractors. I alluded to the importance of doing so in an earlier post when I mentioned the serious coordination issues associated with theater/stage construction. We were just using AutoCAD and not even modelling solid parts back then. We looked at Pro/E and were put off by the specialized hardware and the shockingly high seat price (shocked us anyway).


I remember clearly asking how I would use Pro/E to create our submittal drawings, which depict how our equipment would work in the building. I was amused when the reply was, "I supposed you'd model the parts of the building you are touching." This was in 1996-7, just when Revit was a mere flash in the minds of Leonid and Irwin. Seems logical now but then it was practically laughable that I'd model the building to virtually install our equipment. If the building was already a model...hmmm, different story or reaction perhaps? A few years later, after I'd left to join an architecture firm, they started to use Autodesk Inventor after dabbling with Mechanical Desktop.

I just mocked up the images posted here in less than 20 minutes, 5 for the rigging component, using a dwg file I downloaded from their site as a guide for the form. Then a few minutes to layout the building form and structure and finally the rest fussing with views.

What are you doing?

Friday, September 11, 2009

Dept. of Subtle - RME and Color Fill Legends

As an engineer using RME where would you expect to find the tool that allows you to create a color fill for Spaces/Zones? If you think the logical place is the Architect ribbon tab then you are correct!! It didnt' seem obvious to me when I was first getting acquainted with RME's shiny new UI. I was thinking Annotate...then maybe View? No...the Architect tab? Why not with the Spaces on Analyze?? Here's an image of its location and name.

An AUGI member suggested that the name could be clearer. The duct/pipe color fill legends are featured on the Analyze tab however. If I had my way all the color fill legend features would be in the same location on the Analyze tab, that's my vote! It's not necessarily the correct vote but there are two buttons there already and they only have to move one, that makes it easier??

Okay I admit that I'd really prefer that they were grouped together under View because they are added to views and other features that affect views are located there. Give me enough time and I could build an argument for the Annotate tab too. I'll stick with Analyze just so I'm not being wishy washy.

Thursday, September 10, 2009

Align Views on Sheets

This request is as old as the hills. User are jazzed that plan views at the same scale will snap into alignment and same for elevations and levels. They are less than jazzed when they find that one detail view and another offer no way to align them other than close-is-close-enough.

They are confused when a North and South elevation won't line up with one another. You can explain that they are from different viewpoints and that the grids are opposite but they still want to be able to use the align tool to pick something and then something to align to the first pick.

The Inside the Factory blog has opened this can of worms by posting a series of thoughts and questions. If this issue is a pet peeve of yours you might want to offer your thoughts??

Seems to me that trying to anticipate how we want to align various views would be easier to solve by allowing an align tool to let us pick elements through the viewport ourselves. No need to try to decide what things can allow alignment. Sometimes people want the ends of levels to align, other times they want a certain feature in the view...there are too many permutations to fashion a clever set of rules for what can or can't be aligned. Just provide a tool to let us pick two things, the thing that we like and the thing that is wrong, to fix it.

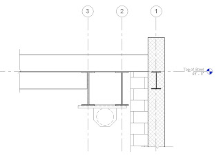
Dutch Stair Winders - Part II

A comment in my previous post asked about stringers that are exposed. Since I took the easy way out and said that most of these stairs are tucked away inside walls it is only natural that someone would like to do it the hard way!

In my reply to the comment I mentioned a few options that come to mind: In-Place Family, Walls and Edit Wall Profile, Railing with custom profiles or just accept the way the boundary/stringers are created by Revit (yeah I know that last one isn't very tasty). Here's an image of the result for the stair using an In-Place family. It's late and I was lazy so I only did one side, that and the other side is still buried in a wall, that's my story anyway.

I created a VIDEO that shows what I did. You can listen and watch here instead.

Another approach might be to build it as a component family. Use the basic stair tool to provide the typical representation of the stair but build a more exacting version in the family editor. This version can be placed so that 3D views benefit from it and sections will show a more accurate representation of the stair. Naturally you'd work your way toward this, no need to do it in schematic design but later when you are ready to really design the stair it might make sense?

[Edit - added images]
James Savage shared a couple screen captures with me for his approach to these stairs. It is similar to the approach the Jeff used in his video, adjusting where the boundary lines start and stop...moving them forward or back along the stair path. This gets pretty close. For complete control the in-place family will still offer more options. At least James worried about supporting the other side of the stair! Thanks for sharing them with me.


Wednesday, September 09, 2009

Worksharing Monitor - Are you Using It?

Worksharing Monitor was created as a separate application and originally made available at the Autodesk Subscription site back in January 2008. I mentioned it in THIS POST and also mentioned that David Light had put together a nice summary of its features on his blog.

What is it intended to do? Provide more information to a team using worksets, such as when files are out of date or when an editing request is generated.

Flash forward to the present and I still find that few firms are aware of it, or if they are, actually using it routinely. This makes me wonder about how effective the delivery of the tool is. Users might be aware of subscription and that there is a site at Autodesk for it. Fewer users actually have access to it or are able to download from it. Since we are talking about a separate software installation that means we are asking an IT department, for any firm large enough to warrant having one, to get it installed. It might be more effective to have it installed as part of the Revit deployment itself.

When I first saw the tool I imagined it was a perfect example of Autodesk using its own Revit API (Application Programming Interface) to deliver features apart from the primary code for Revit. A faster way to deliver features because it didn't rely on a formal release cycle or planned development to get it done. Said another way, a rogue solution that could ultimately be incorporated into Revit itself. That bit hasn't happened so far and I suppose that having it separate give us the choice to use it or not.

If you use worksets for your projects and would like to improve how you interact with Revit as a team then you and your team should be using Worksharing Monitor. If you aren't using it I encourage you to look into it and see what is preventing it from showing up on your desktop.

It isn't perfect however, for example, if you are using Remote Desktop Server it doesn't support that kind of connection at this time. I have also heard about some issues with latency, where it doesn't update as quickly as it should. Overall however it has been a benefit to most everyone I've met that IS using it. I personally prefer to be able to use it when I'm working with a group.

Tuesday, September 08, 2009

Revit 2010 Help Online

Posted today on the Inside the Factory. You can now read the help documentation online and even provide a hyperlink for an item/section to someone who is asking for help. Erik posted the following links in his blog post.

Revit Architecture
Revit Structure
Revit MEP

Grips in Families

The key ingredients in a family to obtain grips is an instance parameter paired with reference planes who are at least a weak reference. You can refer to this old post about the IsReference parameter for Reference Planes. There was a time when they had to be strong but this seems to have changed in recent releases, at least since 2009 and 2010. I've posted a video that demonstrates how this all works together. You can listen and watch here.


Monday, September 07, 2009

Dutch Stair Winders

I saw the post by Jeff, The Revit Kid the other day. The inspiration for his stair video is often referred to as a Dutch Stair. A couple years ago I met Bart, a Dutchman with HOK in San Francisco, while doing some training and he asked specifically about the same configuration. He said that it is quite common in his county. I commented that I didn't remember ever seeing it before.

I was staying at the Galleria Park Hotel a few blocks from the office and that very same evening I found it convenient to use the stairs to get down a couple floors instead of waiting for the elevator. There are two elevators and one was getting replaced so it took a bit longer than usual to get one. Guess what kind of stair condition I found as I started down...yes...the very same configuration!!

Later that same year when I went home to visit some family I was poking through some of our family photo albums from when we lived in Holland. Guess what stair we had in our house...yes...same configuration!! My memory isn't as good as I remember!

Since I didn't take any copies of the photos or take a picture of the stair at the hotel I thought I'd search Google's Images for Dutch Stair Winders and these are some of what I found.




This stair and the layout of their flat is very similar to the one we had in Amstelveen (outside Amsterdam). I thought I'd take a stab at the stair that Jeff did in his video but do it using Boundary and Risers instead of the run tool. Here's my take.


I also found a little bit of information that looks like it is a scan from a book using another nice google search. The book says that the Dutch used these stairs so much that they caused the appearance of block and tackle on the outside of homes. These were used to lift furniture that couldn't make it up the stairs to higher levels and passed through windows instead.

After finishing the video above it occurred to me that I didn't explain why I turned off the Up/Dn labels or why there is no arrow. So this VIDEO does that job! You can listen and watch here.



Saturday, September 05, 2009

Revit Worksets 2010 - Local Files

They revised the process that we use to make local files with 2010. It is easier and a bit safer, so to speak. I say safer because I don't like users getting in the habit of opening central files at all. The new process does let them click on the central file but Revit is smarter about it and uses a default choice Make a Local File instead. Local files are saved in the location you define by using the Options dialog and the File Locations tab, finally specifying the Default Path for User Files as shown here:


I created a short video demonstrating the steps to create a local file. You can listen and watch here.



How Soon is the Future? Sooner Than We Think?

Every now and then I get asked, "So Steve, how long before we just deliver a model for construction instead of drawings and specifications?" Since my nickname is Nostradamus, NOT...I smile and reply, "Next week...next year...next decade?" It usually turns into a nice discussion, all off topic from training, and eventually we have to get back to work!

Just the other day I was speaking with a few students and one of them is working on a project that is under construction and it started out in Revit. Typical construction practice, drawings and specification are the contract documents and the model is available for reference/information. So in this wild future where someday we will use the model more than relying on drawings...turns out this wild wacky future is the past, as in it has already happened sort of.

The subs have apparently been using the model more than intended and ignored the documents, where they shouldn't have, and that's created some trouble. Turns out that walls in the model don't all represent the actual construction conditions, meaning they don't all go to the underside of the deck above etc. The model is sufficient to provide complete documents. The documents very clearly define each wall type and provide the requisite detail to know how to install and finish each wall. Trouble is they didn't pay all that much attention to the documents. They liked seeing the model and those walls aren't the same as the docs. Uh oh!

So the sub-contractors preferred to see the intentions in the model, rather than by studious review of each and every relevant document. My reaction? No kidding! I would too! Why wouldn't they? The contract says they were supposed to but they didn't. When I heard all this I couldn't help but think about every time I read or heard comments about custom arrowheads, where leaders start on multi-line text, the appearance of section and elevation heads, hand-lettered fonts, title block styles, the good-old-days when drawings were art, elevation depth planes, dimension styles and others.

Drawing and documents are a means-to-an-end but they are also a language and not everyone is comfortable with this arcane and, a bit, stuffy language. A model is more democratic because you see it, I see, they see it and practically anyone (who has walked around or inside a building) understands what they see much much faster.

I've been thinking and saying, respectfully, to people for a long time now, "Does any of those things matter when drawings don't matter?" I get laughed at or sometimes seriously angry attitude in response. If the model matched the documents there would be a different story. No formal expectation that the model would reflect the documents precisely existed. Yet the contractors inferred that it did because the model exists. The model IS more important, not in the future, now. We are still in transition, more like confusion, but it is happening here and there, all around us. The sooner everyone figures out how to live in this wild frontier the better.

Friday, September 04, 2009

Autodesk University Update -Shared Coordinates

I received an email today that let me know when my Virtual Class session will be aired. Here are the current details:

Speaker: Steve Stafford
Class Title: Autodesk® Revit® Collaboration: Shared Coordinates for Projects Big and Small

Broadcast 1 Date: Tuesday, 12/1/2009
Broadcast 1 Time: 1:00 pm - 2:00 pm

Broadcast 2 Date: Tuesday, 12/1/2009
Broadcast 2 Time: 9:00 pm - 10:00 pm

This AU Virtual broadcast presentation will not exceed 60 minutes and will ideally be about 45 minutes class. It will include live Q&A with attendees for both broadcast times.

See you there, virtually!?!

[Added 2009-09-21] Now there is a list of classes to review.


Stair Sketches - A Flat Slope Update

I updated this old post with a short video to help explain the situation. If you'd rather just watch the video here now, here it is.


Starting a Project - Two Pieces of Advice

There are lots of things to consider when starting a project. Doing so with Revit is no different. Here's a couple comments that will save you some trouble later.

Number One - Forget about True North!

Revit has a bias or assumption that you are going to ignore True North when you start out, probably because you don't have a survey yet. Sustainable design demands that you think about True North for proper sun orientation but let's just pretend for a moment that you are more interested in making it easy to document the building than its sun orientation. This means that Revit has assigned every plan oriented view (stock templates) to Project North. Model your building so that it is easy, horizontal or vertical as opposed to at 45 degrees. Don't worry about True North because you can define the True North orientation quite easily later, using a couple different approaches.

Number Two - Model separate buildings in separate files!

It is quite literally a major pain in the back side to move a building in a project after a significant amount of work has been done. There are some things that are unavoidable but changing the position of an entire building is a trivial matter when they are separate and linked into a master site file. Use the site file to organize separate building relationships. If they change, move the building, update the building's shared coordinates and move on.

The poor sap who didn't do this is now spending several hours trying to select every last little thing in a multitude of views to reposition their building while you are sipping a drink at happy hour at the Marriott with a few dozen friends. Here's a video that summarize these two points.


Forewarned is at happy hour...or soccer practice...or the archery range...

Thursday, September 03, 2009

AUGI CAD Camps

It is good news that AUGI will be bringing this event back to a city near you. At the end of last year the firm that organized CAD Camps ended its relationship with AUGI. That combined with the fiscal unpleasantness that has been a prominent part of this year meant that having any of these events was very unlikely.

It's my personal belief that even if there had been no management changes that any or even all Camps that might have been scheduled would have been cancelled in light this year's economy. It was hard enough to sustain AUGI World and get the AUGI|AEC EDGE magazine to happen let alone get a series of CAD Camps going.

Regardless it appears that 2010 will bring them back and hopefully the economic situation will rebound along with it. I wish it happened on my watch but I'm grateful there is progress.

Conical Ceiling Condition

Another recent post at AUGI prompted this video. The question is how to make a cone shaped ceiling. You can listen and watch below.


This is the final result.


Wednesday, September 02, 2009

Video Bandwidth

If you've attempted to watch a video and got a bandwidth message, it has been fixed. Sorry for the inconvenience.

Revit MEP - Duct Size in Tags

This is subtle but RME changes how the size of a duct is listed in the tag according to the view orientation of the view that you place your tags in. In plan you get this for a 36" wide x 24" high duct.


In elevation/section however you get this for the same duct.


This convention is defined by the practice of listing the visible (what we see in the view) dimension first. In plan width is visible so it is first. In elevation/section the height is visible and therefore first in the tag values.