Plan, Section and Elevation...the bread and butter of architecture. Why would anyone want to work on these three kinds views of a project and not find that the elements (doors, windows, walls, etc) they present don't match? If I create an enlarged plan shouldn't it match the plan it was generated from, but have greater detail? Shouldn't the windows called out in a plan match those called out in an elevation? Even if you get it perfect at the first submission I guarantee you'll miss stuff when the next design submission is due. By the time you get to the fourth...faahgeddaboudit.
BIM... I don't care if you ever learn what those three letters mean...
PLEASE, in the year of Two Thousand Fifteen, finally abandon your disconnected ways and use Revit (or ...Archicad).
Seriously, because the people that have to read your drawings aren't impressed.
Welcome to Steve Stafford's Blog ~ Revit OpEd = OPinion EDitorial ~ My view of things Revit, both real and imagined.
Monday, August 31, 2015
Friday, August 28, 2015
Save Icon Diskette
This is just one of those things that runs through my head as I use and teach others to use Revit. We've been using this icon for Save in most if not all of our software for a long time.
When was the last time we really used one? Does your computer even allow for its use now?
If that's so 1980-90's then what icon would be better for Save these days? A life preserver? I know one product that uses it now, a product called Workspace from Union Square. It looks a bit like these.
If the icon was a $ would people use it more?
When was the last time we really used one? Does your computer even allow for its use now?
If that's so 1980-90's then what icon would be better for Save these days? A life preserver? I know one product that uses it now, a product called Workspace from Union Square. It looks a bit like these.
If the icon was a $ would people use it more?
Thursday, August 27, 2015
Options Bar - Common Overlooked Options
The Options Bar is a part of the Revit user interface that is important but easily overlooked too. You can read through these selected examples but the moral of my story is "pay attention to the Options Bar".
Also keep in mind that, in general, it is possible to take advantage of the SHIFT and/or CTRL keys to interact with different Options. For example, when the Copy option is present, holding down CTRL will toggle Copy off. When using the Move or Copy tool holding SHIFT down will toggle on the Constrain option to limit motion to X or Y directions only.
For example, using the Mirror Tool the default option is to create a copy of the selected elements as well as mirroring them so the originals stay in place. Do you want Mirror/move instead? Uncheck Copy (or press/hold CTRL).
A similar option exists for the Offset tool.
Using the Move tool people routinely overlook the Multiple option. It makes it easy to continue copying the element(s) to more locations. Press hold SHIFT and Constrain is toggled on.
A similar option exists for the Align Tool. Press/hold CTRL and it toggles on Multiple Alignment.
Using the Rotate tool? It is also possible to copy the selected element during the rotation...just check the Options Bar.
When people use the Array tool they often also create the parametric relationship between the array elements, which is cool but often not necessary. Uncheck the Group and Associate option first.
Using the Split tool we often overlook the Delete Inner Segment option. Using the option makes it easier to split/trim walls to other walls.
When we place columns it is easy to overlook the option that determines whether the column is placed based on Depth or Height. That's a common cause for columns that don't show up when we place them and the annoying error message telling us we can't see them.
Using the Roof tool we can decide whether each sketch segment should be sloped or not, just remember to un-check the Defines Slope option.
Using the Room tool it is easy to forget that we can choose to place any rooms that have not been placed already...from the Options Bar naturally.
When applying dimensions don't forget that we can decide which part of walls Revit should prefer to make it easier to place them.
Have a favorite forgotten option?
Also keep in mind that, in general, it is possible to take advantage of the SHIFT and/or CTRL keys to interact with different Options. For example, when the Copy option is present, holding down CTRL will toggle Copy off. When using the Move or Copy tool holding SHIFT down will toggle on the Constrain option to limit motion to X or Y directions only.
For example, using the Mirror Tool the default option is to create a copy of the selected elements as well as mirroring them so the originals stay in place. Do you want Mirror/move instead? Uncheck Copy (or press/hold CTRL).
A similar option exists for the Offset tool.
Using the Move tool people routinely overlook the Multiple option. It makes it easy to continue copying the element(s) to more locations. Press hold SHIFT and Constrain is toggled on.
A similar option exists for the Align Tool. Press/hold CTRL and it toggles on Multiple Alignment.
Using the Rotate tool? It is also possible to copy the selected element during the rotation...just check the Options Bar.
When people use the Array tool they often also create the parametric relationship between the array elements, which is cool but often not necessary. Uncheck the Group and Associate option first.
Using the Split tool we often overlook the Delete Inner Segment option. Using the option makes it easier to split/trim walls to other walls.
When we place columns it is easy to overlook the option that determines whether the column is placed based on Depth or Height. That's a common cause for columns that don't show up when we place them and the annoying error message telling us we can't see them.
Using the Roof tool we can decide whether each sketch segment should be sloped or not, just remember to un-check the Defines Slope option.
Using the Room tool it is easy to forget that we can choose to place any rooms that have not been placed already...from the Options Bar naturally.
When applying dimensions don't forget that we can decide which part of walls Revit should prefer to make it easier to place them.
Have a favorite forgotten option?
Wednesday, August 26, 2015
Filter Dialog and the More Parameters Button
A small part of a recent exchange at RFO prompts this post.
There is a sneaky button next to the Filter Rules drop down list box. If you click on it (the button with the ellipsis ... ) it will open the Project Parameters dialog. Using it implies or suggests that choosing a parameter from the list, if any are there, will assign the parameter to Filter by. It doesn't do that. It is side door access to creating a Project Parameter. A side door because it allows us to do that without bailing out of the Filter dialog first to do it.
Clicking on the button is the same as choosing the More Parameters option at the very bottom of the list of parameters.
It might be a little more obvious if it said Create Parameter instead?
Oh so subtle...
Tuesday, August 25, 2015
Windows 10 and Revit 2013 UI Glitch
I know it is a bit unfair to suggest or expect that 2013 should support Windows 10. With that in mind I offer this as something to watch out for if you must use 2013 and Win10. I needed to work on a family that must stay in that version so I installed 2013 yesterday. I thought I was successfully past it but it keeps dragging me back in.
As soon as I got started working I noticed that the Title Bar of the UI is missing the Quick Access Toolbar (QAT) and the Help/Info Bar.
Then I noticed that hovering over where they should be caused tooltips to appear. They ARE there but just not visible. I was able to get the QAT below the ribbon by hovering and clicking carefully where that button should be. I don't really need the Info Bar that often so I should be okay for now, plus I know the buttons are there, just bashful.
Via a Twitter reply and @mark_labell_jr He suggests a Windows theme hack described HERE. It worked for me.
As soon as I got started working I noticed that the Title Bar of the UI is missing the Quick Access Toolbar (QAT) and the Help/Info Bar.
Then I noticed that hovering over where they should be caused tooltips to appear. They ARE there but just not visible. I was able to get the QAT below the ribbon by hovering and clicking carefully where that button should be. I don't really need the Info Bar that often so I should be okay for now, plus I know the buttons are there, just bashful.
Via a Twitter reply and @mark_labell_jr He suggests a Windows theme hack described HERE. It worked for me.
Monday, August 24, 2015
Reference Plane Wishes
Three wishes have I, wishes three... (for now)
- Reference Plane Types (control over how they appear and can be used)
- Split Tool works on them
- Trim tool works on them
- Filters can be used on them (for similar reasons to types)
Sunday, August 23, 2015
Dimension between Concentric Arcs
Revit is a bit obstinate about applying dimensions at times, like placing dimensions between concentric arcs for example. It's not uncommon to find people adding short Detail Lines and placing dimensions on those instead...to get the look they want. Chris Needham shared a technique at RevitForum earlier today that's elegantly simple...but perhaps not well known either.
Add a Reference Plane that begins at the center of one of the arcs and crosses all of them. You can adjust its extents afterward so it only appears near to the arcs.
You'll find you can use the Aligned Dimension tool to reference each intersection of the arc (walls in the image) and the Reference Plane, like in the previous image. Revit doesn't give really convincing feedback on screen so you have to look closely and trust its working.
When it comes time to print, just use the Print Setup Option Hide Ref/Work Planes. If you're careful it will look like the dimensions are referencing the arcs.
It would be nicer if we could just do this directly instead...but until that day...
Oh, DON'T turn off Reference Planes using Visibility/Graphics in the view. That will also kill the dimensions.
Mr. Anonymous wrote a comment describing how using the witness line grip after placing the dimensions will allow us to associate the dimension with the arcs. Good tip too, so I created a short video describing the process. Ignore the extra dimension segment I created by mistake (I deleted it in the video).
Add a Reference Plane that begins at the center of one of the arcs and crosses all of them. You can adjust its extents afterward so it only appears near to the arcs.
You'll find you can use the Aligned Dimension tool to reference each intersection of the arc (walls in the image) and the Reference Plane, like in the previous image. Revit doesn't give really convincing feedback on screen so you have to look closely and trust its working.
When it comes time to print, just use the Print Setup Option Hide Ref/Work Planes. If you're careful it will look like the dimensions are referencing the arcs.
It would be nicer if we could just do this directly instead...but until that day...
Oh, DON'T turn off Reference Planes using Visibility/Graphics in the view. That will also kill the dimensions.
Mr. Anonymous wrote a comment describing how using the witness line grip after placing the dimensions will allow us to associate the dimension with the arcs. Good tip too, so I created a short video describing the process. Ignore the extra dimension segment I created by mistake (I deleted it in the video).
Friday, August 21, 2015
Autodesk Revit Sunrise - Online Preview
The Autodesk blog Inside the Factory announced yesterday that Autodesk Revit Sunrise is now available. Want to download it now? CLICK HERE
If you're curious about what the next major release of Revit might include it IS an indication of projects they have been working on. That probably can be translated into "we'll probably see it in the next release". If I grab my crystal ball and look back to last year I see a Autodesk Revit Sundial. If I gaze into it longer I also see Revit 2015 R2 arrive in September (2014). Hmmm...I wonder if history might repeat itself?
Need a little more info to check it out first? Here's a list of features you can check out...(do read their post for explanations)
Nice to include more graphics. It would be cool if they changed the dialog for ceiling plan view range orientation. Cooler still if there were some grips we could drag up and down to adjust the planes eh?
If you're curious about what the next major release of Revit might include it IS an indication of projects they have been working on. That probably can be translated into "we'll probably see it in the next release". If I grab my crystal ball and look back to last year I see a Autodesk Revit Sundial. If I gaze into it longer I also see Revit 2015 R2 arrive in September (2014). Hmmm...I wonder if history might repeat itself?
Need a little more info to check it out first? Here's a list of features you can check out...(do read their post for explanations)
- Global parameters
- Cancel print/export
- Occlusion culling
- Color fills
- Family Editor
- Sheet Issues/Revisions dialog
- Revit links
- Worksharing
- View range
- Underlay
- Filters dialog
- Reference plane names
- Perspective views
- Spot slope
- Wall joins
- Display of walls
- Railings
- Autodesk Raytracer rendering
- Energy Analysis:
- Electrical settings
- Assigning a distribution system
- Display of ducts
Nice to include more graphics. It would be cool if they changed the dialog for ceiling plan view range orientation. Cooler still if there were some grips we could drag up and down to adjust the planes eh?
Thursday, August 20, 2015
Worksharing Monitor is Dead - Long Live Worksharing Monitor
Well it took a LONG time but Autodesk has finally made the Worksharing Monitor application available for Revit 2016. I was thinking that it being missing was a test of our commitment to it. "Will they really miss it? Do they use it?"
Well I missed it and appreciate it coming back to life.
Long live Worksharing Monitor...at least until it truly isn't needed anymore...
Well I missed it and appreciate it coming back to life.
Long live Worksharing Monitor...at least until it truly isn't needed anymore...
Wednesday, August 19, 2015
Revit 2016 - Deleting Revisions
It's possible to select more than one Revision at a time now. In the past we could only select one at a time. Now if we need to clear out a model of its revisions it is easy. Select all the rows (except just one, Revit needs one Revision to function) and click Delete.
While you're checking this out in the Sheet Issues/Revisions dialog have a closer look at the new numbering and Alphanumeric options for Sequence, Prefix and Suffix as well as being able to use Alpha-Numeric sequences too.
I keep expecting to find the Revision button on the Annotate ribbon but it isn't. It is on the View Ribbon > Sheet Composition tab. Is it just me? It's also on the Manage ribbon > hiding under Additional Settings fwiw.
While you're checking this out in the Sheet Issues/Revisions dialog have a closer look at the new numbering and Alphanumeric options for Sequence, Prefix and Suffix as well as being able to use Alpha-Numeric sequences too.
I keep expecting to find the Revision button on the Annotate ribbon but it isn't. It is on the View Ribbon > Sheet Composition tab. Is it just me? It's also on the Manage ribbon > hiding under Additional Settings fwiw.
Tuesday, August 18, 2015
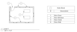
KeyNotes - You Keep Using that Word...
A recent exchange went a little like this:
In Revit there are three ways we can apply keynotes to drawings. First we have a formal tool called, not surprisingly, Keynote. Second we have an older slightly less formal technique using a Noteblock Schedule based on a Generic Annotation family. Third we have the old school approach where we use a Generic Annotation symbol and then separate Annotation (lines) and Text elements to provide the appearance of a formal schedule we are familiar with.
I've often referred to the Keynote feature as the rich man's keynotes because it requires ongoing rigor and advance planning/effort.
We have to manage an external keynote file (TXT) and use specific annotation tags that work with this external data. Our families can each store a keynote parameter value (which a tag reports) and we can create ad hoc User Keynotes too. Keynote Schedules can (a Filter option) display only those that appear in the views that are on each sheet, a distinct advantage over the other techniques.
In the image below I'm using a cool tool called Keynote Manager to review keynotes. We have to organize the information that we want to be available for keynoting ahead of time or at least be prepared to stop and start when we realize we are missing something. The external data and process is more formal and rigorous. That's why I've observed it is also poorly adopted.
When we combine this process with Keynote Legends on sheets we have a consistent and predictable structure for keynoting activity.
In contrast the Noteblock approach, which I've often called the poor man's keynotes, depends on data stored in specific Annotation Symbol families.
It does require some rigor but not quite as much as the formal Keynotes tool and there is no external TXT file that keeps the data consistent. When we create a Noteblock Schedule we have to choose the correct Annotation Family to base it on. Then the schedule reports how many instances of that annotation family (symbol) we place in views, that are then placed on sheets. These are much harder to filter so we only show those that relate to specific views on sheets, there is no built in feature to filter them.
The third approach is not really any different than how I've seen it done for many years with CAD and hand drafting before that.
We place symbols, change the number/letter and then later create a legend on the sheet that provides a summary of the keynote symbols we've placed in the drawing. We examine the drawing and make an entry for each symbol we observe on the drawing. It isn't hard to do but it isn't fun and very error prone, especially as the project progresses and changes occur.
Referring back to the exchange at the beginning of the post, it turns out that the technique that was being used was the last one, symbols, lines and text. It helps a lot to figure out which technique is being used before launching into helpful responses that assume either of the other two possibilities are in play.
Them: "Steve! I need some help with my keynotes!" Me: "Okay, how are you doing them?" Them: "Huh? I just drag this family from the Project Browser and place it in the view. When I look at my keynote schedule I don't see the keynote being added."When software uses the same word we routinely use to describe something we do it is supposed to make it easier to understand and use. Sometimes the opposite happens, as in this situation the word Keynote or the practice of key noting (keynoting). A good many of us in the AEC business are familiar with the concept of using keynotes on drawings.
I find it interesting that I didn't find a definition readily available on the interwebs for what we do with and call keynotes. There were lots of trade specific sites but not the traditional dictionary or wiki version. Most refer to being the keynote speaker at an event or related to music.Regardless, for us it is a system to reduce clutter on drawings by placing symbols that either carry numbers or letters or both to identify different conditions that we should look to a separate place (key, like a map key to symbols) to read more information. Ideally it means we get drawings that are cleaner looking instead of the clutter of long descriptions nestled among the graphics that describes the building itself. It's also a way to help reduce the chances of making spelling errors or stating things differently because more than one person is usually involved in the process of completing drawings.
In Revit there are three ways we can apply keynotes to drawings. First we have a formal tool called, not surprisingly, Keynote. Second we have an older slightly less formal technique using a Noteblock Schedule based on a Generic Annotation family. Third we have the old school approach where we use a Generic Annotation symbol and then separate Annotation (lines) and Text elements to provide the appearance of a formal schedule we are familiar with.
I've often referred to the Keynote feature as the rich man's keynotes because it requires ongoing rigor and advance planning/effort.
We have to manage an external keynote file (TXT) and use specific annotation tags that work with this external data. Our families can each store a keynote parameter value (which a tag reports) and we can create ad hoc User Keynotes too. Keynote Schedules can (a Filter option) display only those that appear in the views that are on each sheet, a distinct advantage over the other techniques.
In the image below I'm using a cool tool called Keynote Manager to review keynotes. We have to organize the information that we want to be available for keynoting ahead of time or at least be prepared to stop and start when we realize we are missing something. The external data and process is more formal and rigorous. That's why I've observed it is also poorly adopted.
When we combine this process with Keynote Legends on sheets we have a consistent and predictable structure for keynoting activity.
In contrast the Noteblock approach, which I've often called the poor man's keynotes, depends on data stored in specific Annotation Symbol families.
It does require some rigor but not quite as much as the formal Keynotes tool and there is no external TXT file that keeps the data consistent. When we create a Noteblock Schedule we have to choose the correct Annotation Family to base it on. Then the schedule reports how many instances of that annotation family (symbol) we place in views, that are then placed on sheets. These are much harder to filter so we only show those that relate to specific views on sheets, there is no built in feature to filter them.
The third approach is not really any different than how I've seen it done for many years with CAD and hand drafting before that.
We place symbols, change the number/letter and then later create a legend on the sheet that provides a summary of the keynote symbols we've placed in the drawing. We examine the drawing and make an entry for each symbol we observe on the drawing. It isn't hard to do but it isn't fun and very error prone, especially as the project progresses and changes occur.
Referring back to the exchange at the beginning of the post, it turns out that the technique that was being used was the last one, symbols, lines and text. It helps a lot to figure out which technique is being used before launching into helpful responses that assume either of the other two possibilities are in play.
Monday, August 17, 2015
Filter Linked Grids and Levels
As soon as we rely on or need to use linked files we are confronted with the presence of their grids and levels. Some people use Visibility/Graphics to interact with the linked files and override them so they can shut them off. I like using a Filter for each instead.
Since I have control over the naming of my grid and level types I can make them unique enough that it is unlikely to compete with the naming used for those that are in any of the linked files. Naturally, the last thing I want to attempt is to get the other trades to align their grid/level names. It's a lot easier to just deal with my own naming.
For example let say there are four linked files; Structure, HVAC, Plumbing and Electrical. They all have grids and levels that use different names. As long as mine are distinctly different from theirs I can filter them all off with one filter for grids and another for levels...since I may want to restore one or the other at times, separately.
Here's the Filter dialog configured to filter out all Grids but mine; I called it Not Local Grids. My Grids have a type name prefixed with AEC, but a firm's own acronym or something else that makes it unique works too. This can change from project to project easily too...if necessary.
Now I just add the filters to my View Templates and all the views that are going to get put on sheets and printed will behave with minimal input from me here on out. For coordination I'll use working views that don't have the filter applied or temporarily override the view template so I can toggle either of them on if necessary.
Here's a bonus Filtering tip that was shared at RTC (sorry I don't recall whose session it was). If you are filtering with a specific criteria but can't recall if the first letter is capitalized or not just leave that letter out. For example if you aren't sure if it is Concrete or concrete just enter oncrete as your critera. Pretty subtle and clever!
Since I have control over the naming of my grid and level types I can make them unique enough that it is unlikely to compete with the naming used for those that are in any of the linked files. Naturally, the last thing I want to attempt is to get the other trades to align their grid/level names. It's a lot easier to just deal with my own naming.
For example let say there are four linked files; Structure, HVAC, Plumbing and Electrical. They all have grids and levels that use different names. As long as mine are distinctly different from theirs I can filter them all off with one filter for grids and another for levels...since I may want to restore one or the other at times, separately.
Here's the Filter dialog configured to filter out all Grids but mine; I called it Not Local Grids. My Grids have a type name prefixed with AEC, but a firm's own acronym or something else that makes it unique works too. This can change from project to project easily too...if necessary.
Now I just add the filters to my View Templates and all the views that are going to get put on sheets and printed will behave with minimal input from me here on out. For coordination I'll use working views that don't have the filter applied or temporarily override the view template so I can toggle either of them on if necessary.
Here's a bonus Filtering tip that was shared at RTC (sorry I don't recall whose session it was). If you are filtering with a specific criteria but can't recall if the first letter is capitalized or not just leave that letter out. For example if you aren't sure if it is Concrete or concrete just enter oncrete as your critera. Pretty subtle and clever!
Sunday, August 16, 2015
Revit 2016 - Selection Box and Scope Box
I keep forgetting about the new Selection Box tool. It just requires us to select something and it will open the default 3D view and turn on the Section Box to match the extents of the selected element(s).
The new tool is also quite handy when used in combination with a Scope Box. I don't think of one (a scope box) as an model element, not like a door or a wall at least. The tool doesn't mind though. That makes it easy to crop a large model down to just a selected Scope Box. Easy!
The new tool is also quite handy when used in combination with a Scope Box. I don't think of one (a scope box) as an model element, not like a door or a wall at least. The tool doesn't mind though. That makes it easy to crop a large model down to just a selected Scope Box. Easy!
Heads Up, it will use the active 3D view if there is one. Just be sure to close the 3D view you don't want to alter or open one you do. If no 3D view is open it will use the default 3D view, yours (the one with your username appended) if you are using worksets.
Saturday, August 15, 2015
Worksets for the Small Project
It is not uncommon to hear that people who are able to work on projects alone choose to ignore using worksets. Choosing to avoid adding any unnecessary complexity to the experience is one reason I hear. Another is, "Worksets are only required (and therefore useful) when people have to work on the same model together at the same time." It's true, I have written as much.
If this person is you, there are a couple of subtle benefits you might want to consider.
One way around this is to open more than one session of Revit. Each Revit session uses a separate Windows Clipboard, in memory set aside for each session of Revit. That makes it harder to use Copy/Paste to pass things back and forth if necessary.
If we use Worksets instead we are working in a Local File. We link files based on the central file though. The consequence of this is that we can open any number of other linked files in the same session of Revit now because we'll be opening a Local File, not the Central File. Revit doesn't object to that condition. NICE! It's enough reason for me to enable Worksets on every project, at least every one that will be involved in linking with other RVT files.
Regarding #2 - Choosing which worksets to open when we open a project is quite helpful because we can be creative with worksets and linked files and find ourselves able to choose which linked files should be opened too. Otherwise we have to wait until the file opens and then use Manage Links to Unload them or frequently use Visibility/Graphics to turn them on/off as required.
The trick is to create a unique Workset for each linked file we'll be using. Then we can choose which one to open when we open the project itself, demand loading of linked files via Worksets...since we can't manage links until the file is fully opened and all links are loaded. It starts here when you open a project (see image below).
When Revit begins to open the project the first thing it will load is the Worksets dialog which will give us a chance to decide which of them should be opened or closed. Anyone who has worked on projects with several (or many) large linked files knows how each file increases the initial opening time required for a project. Why put up with that at all?
Have I convinced you to give it a try? I hope so!
If this person is you, there are a couple of subtle benefits you might want to consider.
- Opening inter-linked files in the same session
- Selectively loading worksets while opening the file
One way around this is to open more than one session of Revit. Each Revit session uses a separate Windows Clipboard, in memory set aside for each session of Revit. That makes it harder to use Copy/Paste to pass things back and forth if necessary.
If we use Worksets instead we are working in a Local File. We link files based on the central file though. The consequence of this is that we can open any number of other linked files in the same session of Revit now because we'll be opening a Local File, not the Central File. Revit doesn't object to that condition. NICE! It's enough reason for me to enable Worksets on every project, at least every one that will be involved in linking with other RVT files.
Regarding #2 - Choosing which worksets to open when we open a project is quite helpful because we can be creative with worksets and linked files and find ourselves able to choose which linked files should be opened too. Otherwise we have to wait until the file opens and then use Manage Links to Unload them or frequently use Visibility/Graphics to turn them on/off as required.
The trick is to create a unique Workset for each linked file we'll be using. Then we can choose which one to open when we open the project itself, demand loading of linked files via Worksets...since we can't manage links until the file is fully opened and all links are loaded. It starts here when you open a project (see image below).
When Revit begins to open the project the first thing it will load is the Worksets dialog which will give us a chance to decide which of them should be opened or closed. Anyone who has worked on projects with several (or many) large linked files knows how each file increases the initial opening time required for a project. Why put up with that at all?
Have I convinced you to give it a try? I hope so!
Friday, August 14, 2015
Family Critique - Overhead Storage Bin
In a past post I was critical of how it was made and described what could be done to fix it. With that in mind, let's examine another family and see how very minor changes will improve the user experience.
First a little background noise, I've been participating in a program that Autodesk started called Revit Mentors. It is focused on people that are using the trial version of Revit, trying it on for size before buying. They been running the same thing for AutoCAD for much longer and recently decided to do the same for Revit. The mentoring takes place in the form of a chat window and this family was the subject of one such session.
The family in my sights today belongs to the Furniture System category and is called Overhead Storage Module.rfa (see image).
You can see two instances are highlighted in red in the above image. What's wrong with the family?
In the image below we can see (no highlighting visible) that Revit doesn't acknowledge the edge of the family so it can't snap into the correct position easily. When I'm confronted with this issue I usually place such families wrong and then use Align to fix them. Then I copy them around instead of placing them. If I was really smart I'd edit the family and fix the problem.
This is what the family looks like after I've fixed the IsReference parameters. I've also named the Reference Planes using the same words.
Now placing the family is easy because Revit sees the Strong Reference Planes. The nice IsReference names like Front, Back, Left and Right are Strong too.
The second issue is that the geometry of the family is entirely above the cut-plane of the family and most project views. To fix this we can use the Old Invisible Line Trick. I've placed a Symbolic Line using the invisible lines linestyle. It spans from the Reference Level up to the top of the cabinet. I've locked the end points to the top and bottom references so it tracks with the cabinet if its parameters are changed later. It looks like this now. I've also named and assigned the IsReference parameters using Top and Bottom.
The third issue is resolved by editing the Masking Region that has been used in the family. I changed the front linestyle to Hidden Lines so that it will use that linestyle in the project too.
Now the cabinets are visible immediately and without worrying about using the view's Underlay parameter at all.
If I want to make it obvious that there is a difference between hidden items below and above then I'd use (and create if necessary) a different linestyle for each such situation. The Project templates that Autodesk provides have a linestyle called Overhead. I'd just need to add this to my family and assign it to the masking region boundary segment instead.
The presence of these subtle issues demonstrate to me that nobody really tries to use these families in a meaningful way when they are created. In this case the family is quite old. It has probably just been upgraded every year for at least a decade. There are a lot of existing families. It would be nice if someone was routinely taking a closer look at all this content. With our wishlist getting longer and louder every year I'm not going to hold my breath.
It is subtle stuff like this that helps make each user's experience just a little bit better!
First a little background noise, I've been participating in a program that Autodesk started called Revit Mentors. It is focused on people that are using the trial version of Revit, trying it on for size before buying. They been running the same thing for AutoCAD for much longer and recently decided to do the same for Revit. The mentoring takes place in the form of a chat window and this family was the subject of one such session.
The family in my sights today belongs to the Furniture System category and is called Overhead Storage Module.rfa (see image).
You can see two instances are highlighted in red in the above image. What's wrong with the family?
- When we try to place the family Revit does not recognize its sides so it is difficult to place it accurately on the first try.
- It also isn't visible during placement unless we have already assigned the Underlay parameter to the same level the view is associated with.
- It remains invisible after placement and that means we have to resort to tricks to make it visible in the view too.
In the image below we can see (no highlighting visible) that Revit doesn't acknowledge the edge of the family so it can't snap into the correct position easily. When I'm confronted with this issue I usually place such families wrong and then use Align to fix them. Then I copy them around instead of placing them. If I was really smart I'd edit the family and fix the problem.
This is what the family looks like after I've fixed the IsReference parameters. I've also named the Reference Planes using the same words.
Now placing the family is easy because Revit sees the Strong Reference Planes. The nice IsReference names like Front, Back, Left and Right are Strong too.
The second issue is that the geometry of the family is entirely above the cut-plane of the family and most project views. To fix this we can use the Old Invisible Line Trick. I've placed a Symbolic Line using the invisible lines linestyle. It spans from the Reference Level up to the top of the cabinet. I've locked the end points to the top and bottom references so it tracks with the cabinet if its parameters are changed later. It looks like this now. I've also named and assigned the IsReference parameters using Top and Bottom.
The third issue is resolved by editing the Masking Region that has been used in the family. I changed the front linestyle to Hidden Lines so that it will use that linestyle in the project too.
Now the cabinets are visible immediately and without worrying about using the view's Underlay parameter at all.
If I want to make it obvious that there is a difference between hidden items below and above then I'd use (and create if necessary) a different linestyle for each such situation. The Project templates that Autodesk provides have a linestyle called Overhead. I'd just need to add this to my family and assign it to the masking region boundary segment instead.
The presence of these subtle issues demonstrate to me that nobody really tries to use these families in a meaningful way when they are created. In this case the family is quite old. It has probably just been upgraded every year for at least a decade. There are a lot of existing families. It would be nice if someone was routinely taking a closer look at all this content. With our wishlist getting longer and louder every year I'm not going to hold my breath.
It is subtle stuff like this that helps make each user's experience just a little bit better!
Thursday, August 13, 2015
Revit 2016 - Copy Monitor - Wall Location Line
I don't recall any mention of this appearing in the What's New documentation or presentations. I stumbled into it the other day and meant to write about it but my aging Dell finally bit the dust and that distracted me. I find this new parameter and options appears when I examine the Walls tab in the Copy/Monitor Options dialog.
Interesting isn't it? I experimented with using the option. This image depicts a linked file with compound architectural walls being used to create Stud Only walls in a structural model.
I specified that C/M should create a Stud Only wall type instead of the compound wall type being used by the architectural model. I then used the Location Line: Core Face:Exterior.
I didn't find any help documentation to support this new feature. What I did find declares that C/M just uses the Wall Centerline for alignment, which was true until now!
Also, fwiw the openings created at the doors and windows are the correct sizes but only because the families don't have any additional geometry beyond the extent of their frames. I placed openings in the walls at the curtain walls manually using the Wall Opening tool (Architecture or Structure tab > Opening panel > Wall).
Interesting isn't it? I experimented with using the option. This image depicts a linked file with compound architectural walls being used to create Stud Only walls in a structural model.
I specified that C/M should create a Stud Only wall type instead of the compound wall type being used by the architectural model. I then used the Location Line: Core Face:Exterior.
I didn't find any help documentation to support this new feature. What I did find declares that C/M just uses the Wall Centerline for alignment, which was true until now!
Also, fwiw the openings created at the doors and windows are the correct sizes but only because the families don't have any additional geometry beyond the extent of their frames. I placed openings in the walls at the curtain walls manually using the Wall Opening tool (Architecture or Structure tab > Opening panel > Wall).
Subscribe to:
Posts (Atom)








































