Monday, October 31, 2011

Using Edit Profile on a Curtain Wall

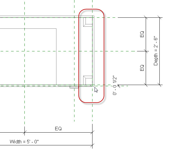
I recently responded to a post at RevitForum.org when a member asked about creating what sounded to me like a round top window using a curtain wall. I posted a couple screen captures and briefly discussed how they were made. This first one is a curtain wall embedded in a host wall followed by using Edit Profile to alter the sketch of the curtain.


This one is a bit more involved. I started with a single rectangular curtain wall and copied it to clipboard. Then I used Edit Profile to change it's shape. I then used Paste Aligned > Same Place to put the original curtain wall back on top of the first one. Using Edit Profile again allowed me to follow the edge of the first and design the second wall. Repeat the steps for the third and we have a curving set of mullions that are defined by three curtain walls that have complimentary sketches defined using Edit Profile.


I mentioned the use of the parameter Automatically Embed, a feature of curtain wall. The curtain wall types that are present in the stock templates vary but the simplest ones like Curtain Wall1 don't have the feature selected. If you sketch one of these walls over the top of another you'll get an error message.


I posted the following image because I thought it was worthwhile mentioning that the Cut Geometry tool the warning message references allows us do things like this too.


I also created a video that discusses these concepts.



Friday, October 28, 2011

What did you Intend? Family Editing Issues

There is a stock family that dates back to the very earliest of days, Desk.rfa. It's a good example of a family that confuses users routinely. The issue is that the desk top isn't visible in plan and it overhangs the edge of the chassis of the desk.


When in plan we can align the desk but find in a 3D view that it now overlaps another or something else, like a wall for example.


When we make content it helps the end user a lot if such inconsistencies don't exist. Here's a video that shows what I'm writing about too.



Thursday, October 27, 2011

Show When Multiple Viewports

When you put a view on a sheet, its viewport has a parameter (Show Title) that determines when we see a view title. There are three choices; Yes, No and When Multiple Viewports. The third option (When multiple viewports) will cause Revit to only show the view title when there is more than one viewport on a sheet.


An interesting thing happens when you actually use the When Multiple Viewports option, we lose the snapping sensitivity that the view title line has when adjusting the length/position of the line. I've created a short video that shows it in action since it's easier to see that way.



3D Connexion AU Contest

A few other bloggers have mentioned that 3D Connexion is promoting their products with a chance to get to Autodesk University 2011. Pretty simple requirements to enter. If you haven't already made your plans to attend and going is a long shot, this might improve your odds a little bit. I guess how good your odds are depends on how many other people decide to enter? You can learn more HERE.


You have to enter by midnight U.S. PDT on November 7, 2011. For details, please see terms and conditions. The winner will be contacted by email or phone on November 8, 2011 and will have 3 days to claim prize.

Vasari Update

Vasari 2.1 update has been posted at Autodesk Labs. They stated that it is a minor update, "just some bug fixes like correcting problems with SketchUp import and custom glazing."

In another post they announced Vasari Talk. This post is a day late and a dollar short though since the one they were alerting us to was yesterday, sorry about that! Here's what was posted:

The Project Vasari team has just kicked off a periodic series of webinars where you can have some "face time" with the Project Vasari development team. There will be demos, tutorials, and answers to your questions. The next session will be this Wednesday, October 26 at 11:30 AM Eastern (-4 GMT.) You can register for upcoming sessiosn and view past session videos on the wiki page.

Register for Project Vasari Talk (This is part of WikiHelp so you can review the information they've posted)

Future Sessions:

Points and Lines

Click here to register for Wednesday November 9, 11:30 - 12:30 Eastern Time (GMT -5)

Introducing Parameters

Click here to register for Wednesday November 16, 11:30 - 12:30 Eastern Time (GMT -5)

Keeping your (design) options open

Click here to register for Wednesday November 30, 11:30 - 12:30 Eastern Time (GMT -5)

Past Sessions:

Session 1: The Basics

Session 2: The Mysteries of Creating Form

Thursday, October 20, 2011

Don't be Double Clicker!

Should be no surprise, when software is installed a file association is created that links its special file extension with Windows. This allows you/me to double click on a file to open it with the correct application.

Revit versions don't distinguish themselves with a special executable file for Windows to recognize them as different, they are all just "Revit.exe". This means that Revit Architecture, Structure and MEP are the "same" when Windows sees a .rvt file (or .rfa, .rte and .rft).

Having more than one version of Revit (RAC,RST and RME) and/or having more than one release 2010, 2011 or 2012 for example is a recipe for problems. When you install just Revit Architecture, no problem. If you install a newer version Windows thinks the newer version is the "one". Double click on a 2011 file now and you'll likely be opening it with 2012 instead. If you install RAC first and then RST Windows will think every project is a RST file. It all boils down to wasting your time waiting for a file to open with the wrong version of software and having to do it over again.

Simple, don't be a "double clicker"!

Tuesday, October 18, 2011

Who's Your Daddy - Revit MEP Relationships

Revit MEP elements like electrical panels and receptacles or HVAC equipment and diffusers have a Parent - Child relationship. The other day we were chatting about this in class and I blurted out "You know, like whose your Daddy?" I was kidding but one of the guys said that it actually helps remember to start with the "child" part of the relationship. For example, you start with a receptacle and create a power circuit, then choose the "Daddy", the electrical panel it gets power from. This relationship continues up through the grandparents, great grandparents etc. When everything is assigned correctly you can "see" this "family tree" in the System Browser.


So if it helps, when you are creating relationships between elements with Revit MEP, just remember "Whose your Daddy"! Start with the child and then assign the Daddy...

Monday, October 17, 2011

Elevation Update Update Updated

Part three of the trilogy... (following up these other posts)

Steve Faust and Nick Kovach of Revolution Design are sharing a free fix for the elevation update issue.


This only affects projects that don't use Worksharing. If that's you then check out their solution until Autodesk delivers a patch or update to resolve it. While you are there you might as well check out their Keynote Manager and Selection Master apps, might find them useful!?

Thursday, October 13, 2011

Elevation Update Update

Comment on my earlier post regarding elevation tags not updating properly...seems that it only affects stand-alone project files. If you are using worksets then the updating process works as expected. Good news for worksharing projects! I guess for now you'd better enable worksharing if you aren't? Thanks to Nick for following up with the comment.

Wednesday, October 12, 2011

Room Name Alternates

This is a repost of one I wrote back in December 2008. It came up again recently in a question via email and I noticed it's a pretty old post so I thought I'd plug it again.

Sometimes a name is just too much, too long, it just doesn't fit in a room. The stock Name parameter for a room is easy, it's already there waiting for us to us. When we use abbreviations in this parameter we end up with some full names and some abbreviations. An abbreviation of "T." for Toilet might be fine on a plan view but it is less than stellar in a schedule. We could use another stock parameter like comments to store an abbreviation instead but that subverts its usefulness for actual comments.

Shared Parameters to the rescue!

I've written several posts about shared parameters in the past so I won't go into making them again in this post (see bottom). This is what you need to do to get a new parameter working in a project.

Create a shared parameter (called Abbreviation for example)

Create a room tag family that uses your shared parameter, save the Family and load the family into your project

Add a Project Parameter (Settings > Project Parameter) using your shared parameter too. Assign the parameter to the Room Category

Use the parameter in your rooms, set-up a schedule and tag your rooms with the appropriate tag.

This gives the best of both worlds. Supply abbreviations for names that are unruly and don't bother for reasonable names. A schedule will make it easy to define either and those that don't have abbreviations don't "need" them. Just make sure you use the correct tag to display the value you really want people to see. You could also use this technique to provide a room name in a second language, if necessary.

I've posted a revised copy of my Egress Example project that contains a working example of the shared parameter, tag and schedule.

This post Shared Parameter File: A Little Clarification provides a full list of the posts I've made in the past on the subject of Shared Parameters.

Tuesday, October 11, 2011

Elevation Tag Update Not Happening

Uh oh Spagetti O's... with the recent update I've noticed that the elevation annotation tags do not update when the their detail number values are changed. I don't recall this happening before the update but it's definitely going wrong now.


I find it necessary to change the annotation type to another or alter a setting in the family before Revit will "wake up" and change the tag to the new value. Boohoo...

Here's a quick VIDEO to demo the issue.


Monday, October 10, 2011

Adirondack Castle

After working in the theater equipment business (lighting, rigging and curtains) for eleven years I found myself burnt out. Truthfully I was burnt out at around year 9, or at least definitely starting to char. When I was looking for that next thing I stumbled into a good friend and fellow indoor soccer team mate, Joe. He joined a small boutique architecture firm in the little village with the unusual name, Skaneateles, NY.

Ramsgard Architectural Design is run by Andy...Ramsgard, thus the name. He's built a solid, well regarded practice, and enjoys a legacy of great projects in his still youthful practice. Joe introduced me to Andy, Andy gave me a freelance drafting assignment which turned into a full time gig. Transition from theater biz to architecture biz via the side door complete! Great experience and I still use the things I learned there today...so thanks to Andy (and Eric, Joe, Frank, and Sherie) for the memories!

As if running a business isn't enough to keep him busy Andy has taken on another challenge. He (and his family, wife Sherie, and kids Ruby and Rex) bought a unfinished castle in the Adirondacks. They've been working since to take another man's dream and see it through to completion.

A dream formed in eight year old Ed Leary's mind during 1951, a dream of building a castle. In 1983, at forty years old, he finally saved enough money to get started with buying 20 acres of land. He worked at it for just over twenty years until he died of a spinal infection at sixty-two. The property and the shell of the castle "bobbled" back and forth for a number of years between family members until the Ramsgard's came into the picture. Here's what the castle looked like during their first visit.

First view on first visit 11.09

There's more to the story and Andy's wife, Sherie, started blogging about it in May 2010, at least it looks to me like she's doing the majority of the posting. Considering it's a weekend warrior project they've made some serious progress since. Here's a picture from recent post from last month.


If you are curious you should check out their blog and follow along. If you are in the Adirondacks you might be able to be a new friend and help out during the weekend. They've got some rocks they need to move, among other things!

A man's home is his castle and Long live the King (and his Queen and kids)!

Thursday, October 06, 2011

Assigning a Dimension Oddity

Received a question via email asking why Revit seemed unwilling to assign a Shared Parameter that used the Duct Size type to a dimension string. Here's what the SP properties looked like.


The quirky part assumes that you want to select a dimension string and then associate it with the SP. This is what happens when you do that.


I've recorded a brief video to show the result too.


Wednesday, October 05, 2011

Schedule Features Not Available

When you examine the Appearance properties of a schedule, say for doors or windows, you are teased with a couple options that are inaccessible.


Those are only accessible when you create/edit a title block family and deal with a Revision Schedule.


Only revision schedules can fill out Bottom-to-Top and/or have a fixed schedule height assigned, sorry!

[Edit: Oh, when I highlighted the images I included the check box for "blank row before data", obviously that is available in either schedule situation. I should have limited the width of the box.]

Tuesday, October 04, 2011

Not Responding - Don't Panic

...and remember your towel!

I quite frequently see (not responding) on the Title Bar of Revit these days, more now than in the past it seems. It can be a bit disconcerting however don't panic. It is usually just Revit refusing to talk to Windows while it is cranky through whatever task you've given it. It's as if Revit is saying, "Hang on a minute, I'm busy, I can't be bothered to tell you (Windows) what I'm up to at the moment."

So when you see the message, don't panic, give it a few minutes, check out Task Manager, see how much memory is being used. Make sure the computer is actually "stuck" before doing something drastic and using "End Task".

Monday, October 03, 2011

Printing with Temporary Hide Isolate

A subtle change was made to our printing process (Revit 2012) when we print from views that have Temporary Hide/Isolate changes. This dialog is presented to us:


The first option ignores the things we've hidden or isolated and prints the view as if we didn't change anything. This is how printing such views behaved in the past. The second option gives us the chance to respect the fact that we've changed what we can see in the view so we CAN print a view that's been altered. Erik Blackburn with NBBJ pointed this out to me as a candidate for a post and I think it belongs in the Department of Subtle. Thanks Erik!